Tulevia kohteita
Sivakka rakentaa Oulussa myös uusia vuokra-asuntoja sekä vanhoja kohteita peruskorjataan. Tiedotamme tällä sivulla ajankohtaisia asioita tulevista uudis- ja peruskorjauskohteistamme. Uudis- ja peruskorjauskohteisiin järjestetään aina erillinen haku, jonka ajankohta ilmoitetaan hyvissä ajoin tällä sivulla.
Kunkin kohteen asuntoja tulee hakea erikseen kohteelle ilmoitettuna hakuaikana. Uudis- ja peruskorjauskohteista tarkemmat tiedot jaamme tällä sivustolla lähempänä kohteen valmistumista ja hakuaikaa.
Tulevia uudis- ja peruskorjauskohteita
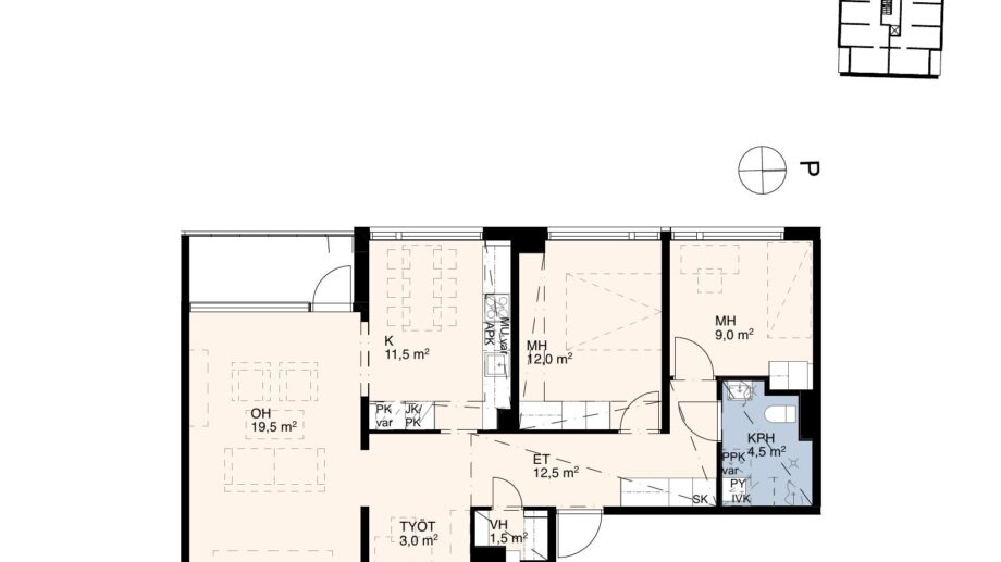
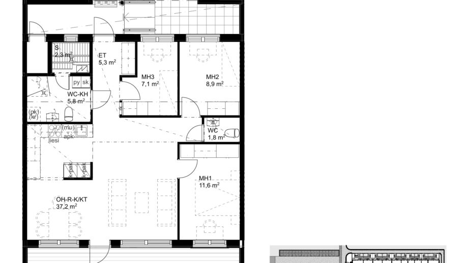
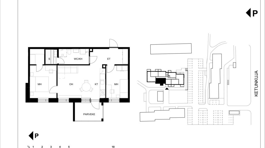
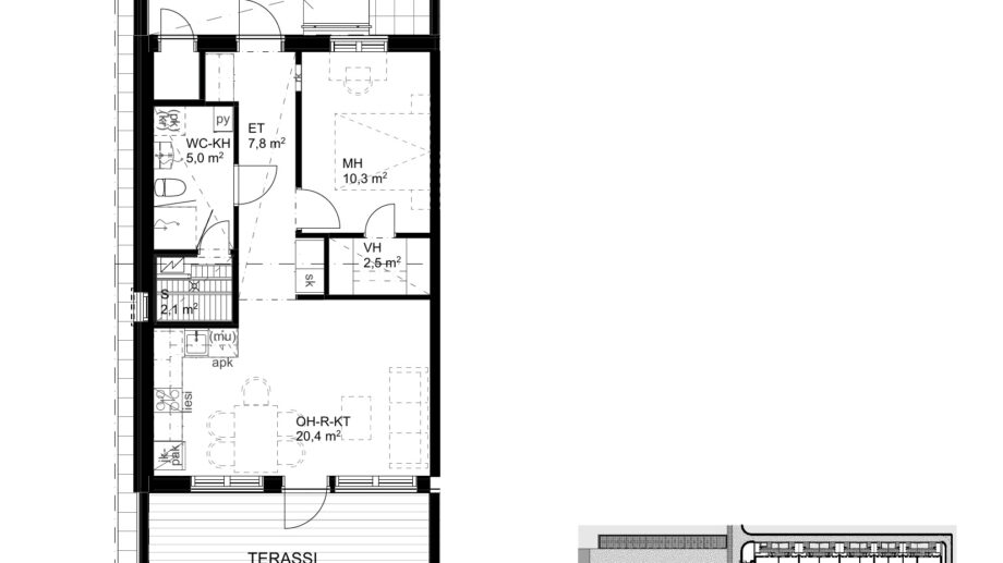
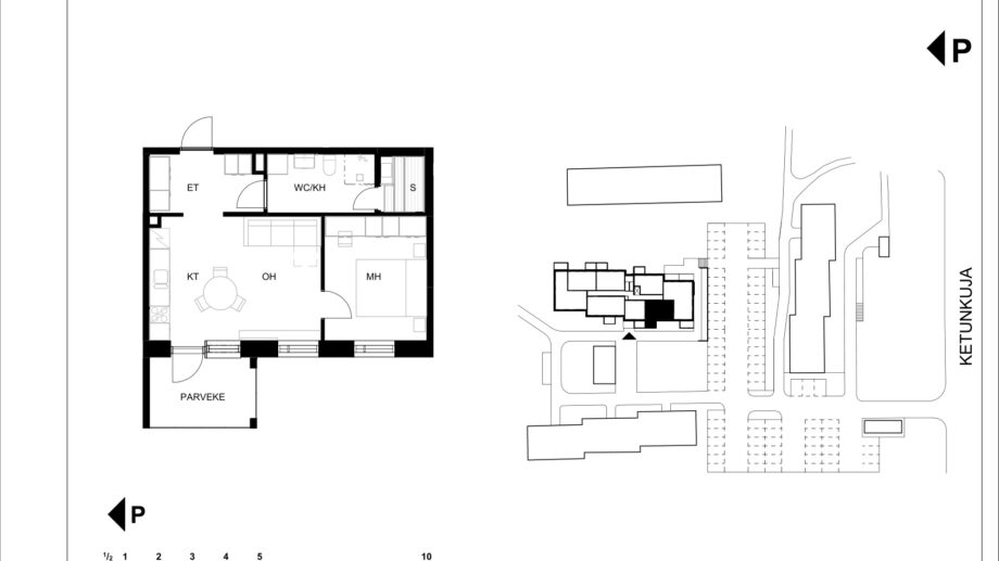
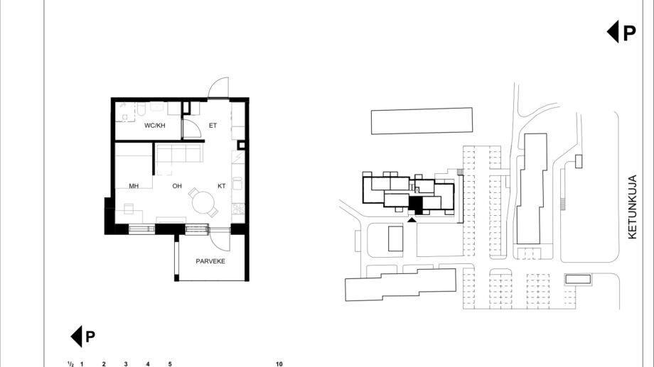
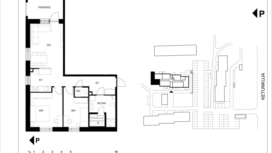
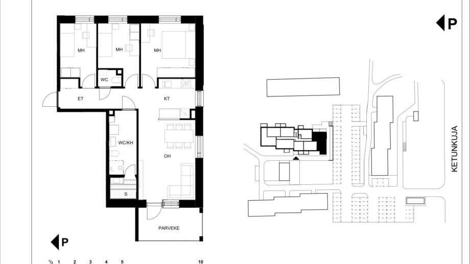
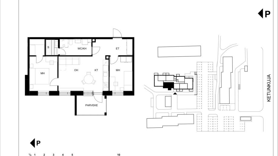
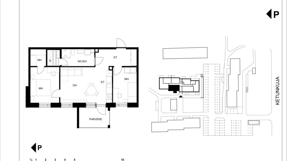
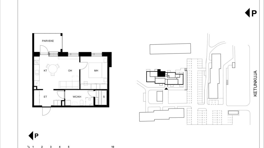
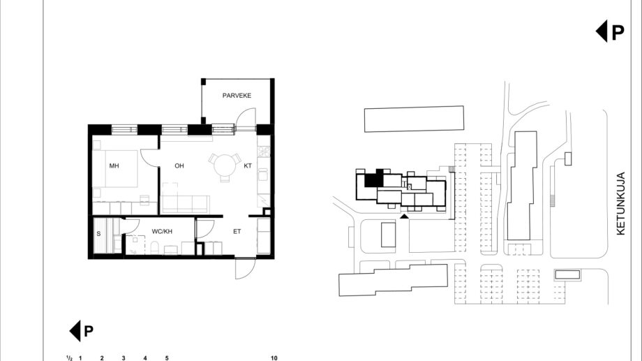
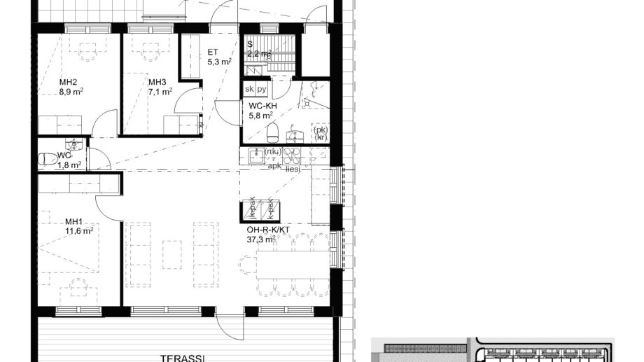
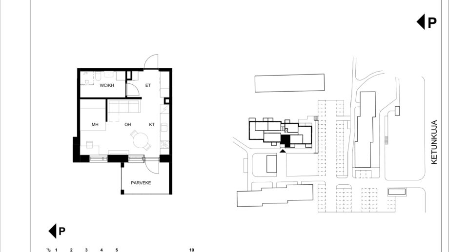
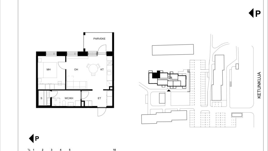
Ketunkuja 6 / Haukipudas – Kirkonkylä
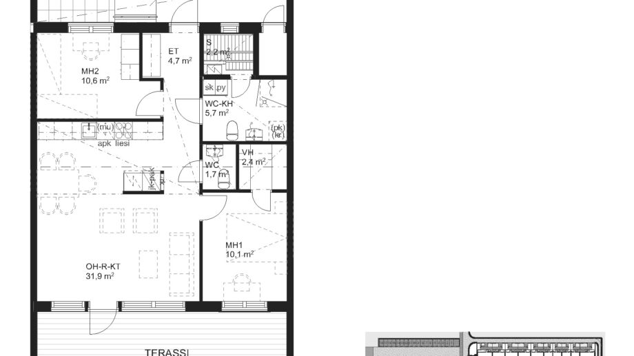
Haukiputaan Kirkonkylälle osoitteeseen Ketunkuja 6 rakennetaan nelikerroksinen kerrostalo, johon valmistuu 31 asuntoa. Kohteen arvioitu valmistuminen marraskuussa 2026.

Asuntojakauma:
| 1h+kt | 32,5 m² | 496 – 506 €/kk | 3 kpl |
| 2h+kt | 42 m² | 583 – 601 €/kk | 4 kpl |
| 2h+kt+s | 45,5 m² | 615 – 633 €/kk | 11 kpl |
| 2h+kt+s | 56 m² | 695 €/kk | 1 kpl |
| 3h+kt+s | 60,5 m² | 751 – 773 €/kk | 4 kpl |
| 3h+kt+s | 64 m² | 786 €/kk | 1 kpl |
| 3h+kt+s | 72 m² | 823 – 847 €/kk | 4 kpl |
| 4h+kt+s | 77 m² | 869 – 887 €/kk | 3 kpl |
Vuokraan sisältyy lämmitys ja 25 Mbit/s laajakaista. Vesimaksu laskutetaan erikseen kulutuksen mukaan.
Asuntoihin sovelletaan tulo- ja varallisuusrajoituksia, joista voit lukea tarkemmin Oulun kaupungin verkkosivuilta.
Kohteen alustava hakuaika 27.8.-6.9.2026.
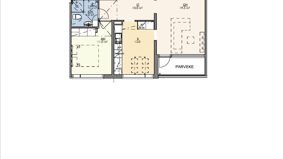
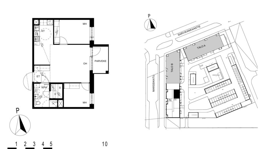
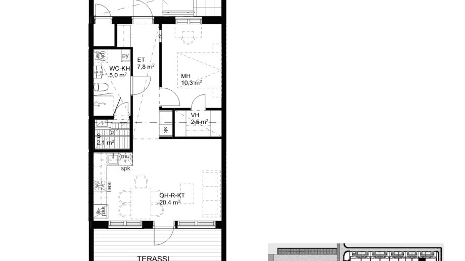
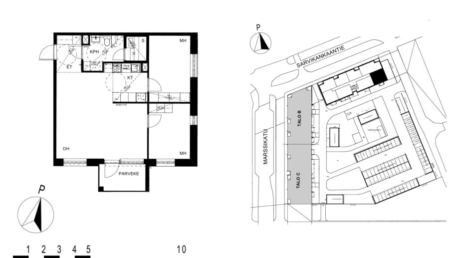
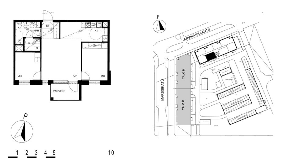
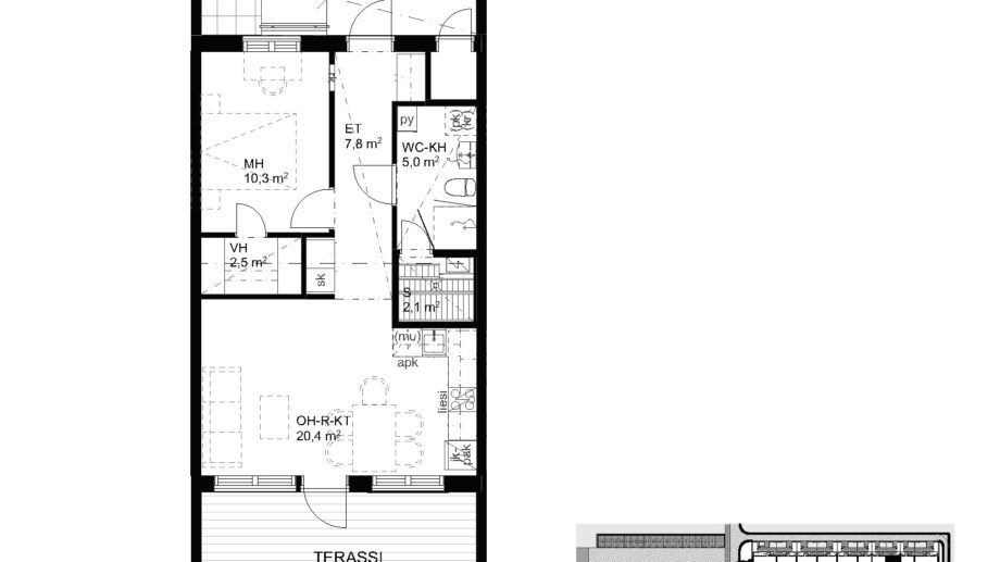
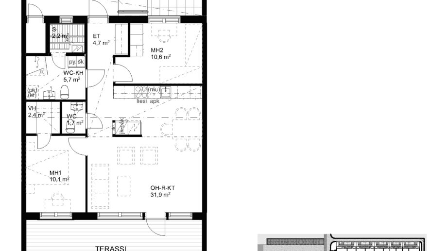
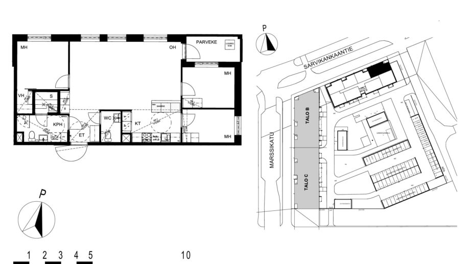
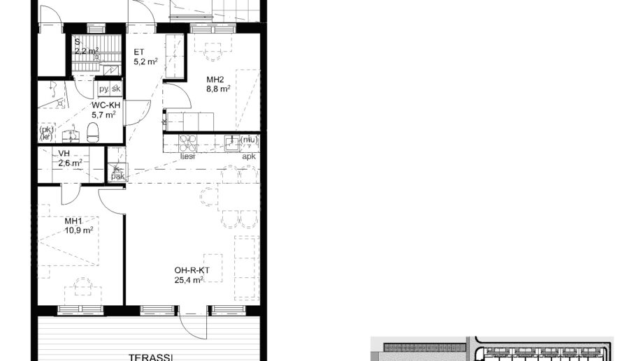
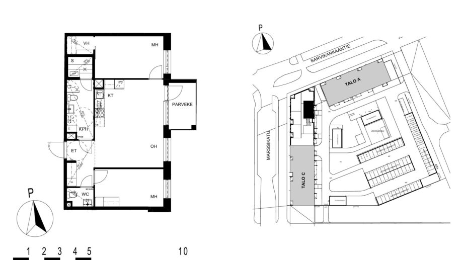
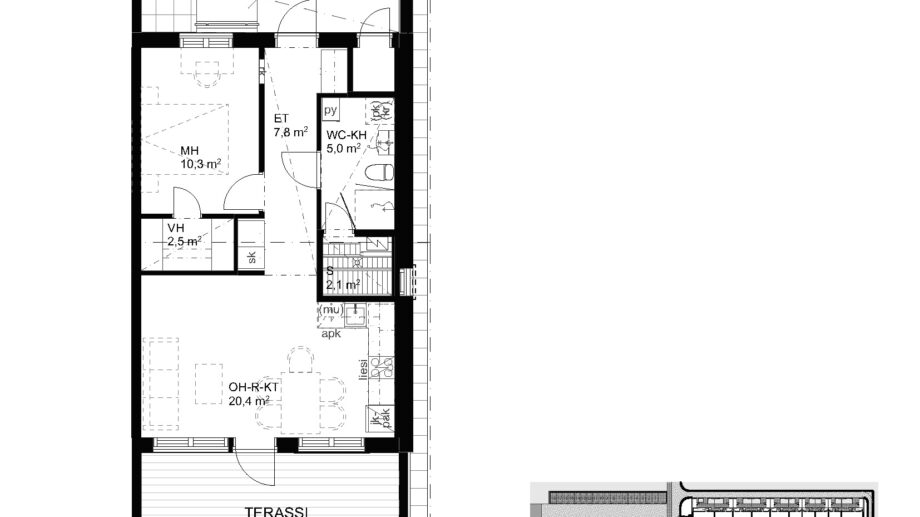
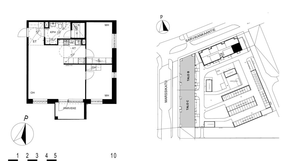
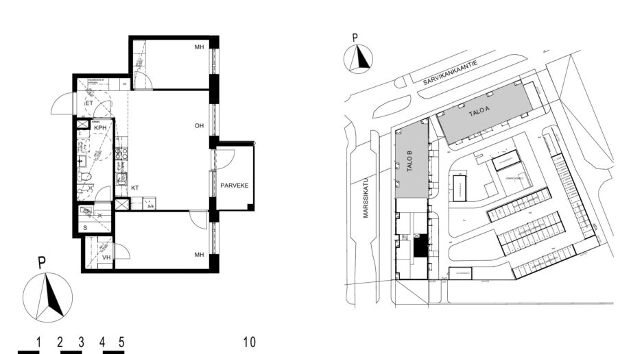
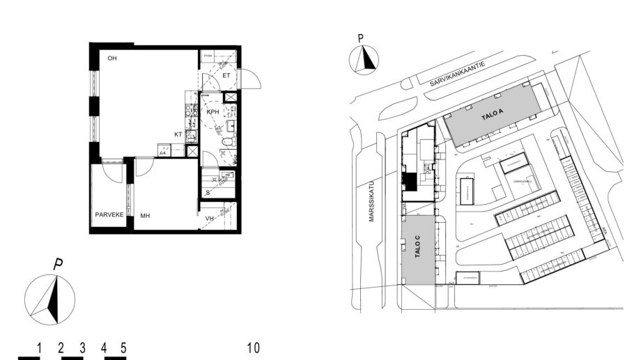
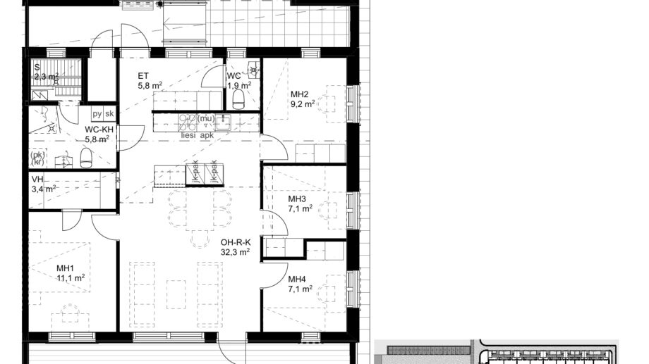
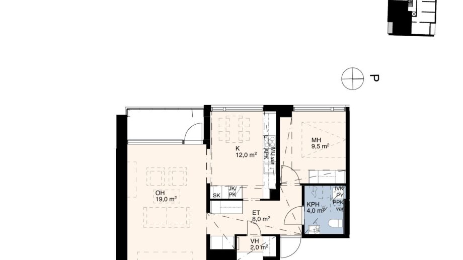
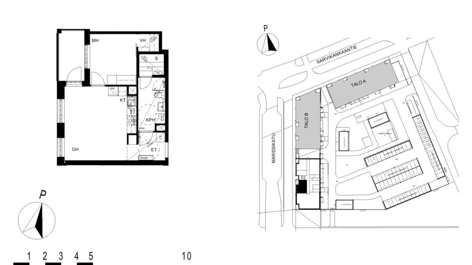
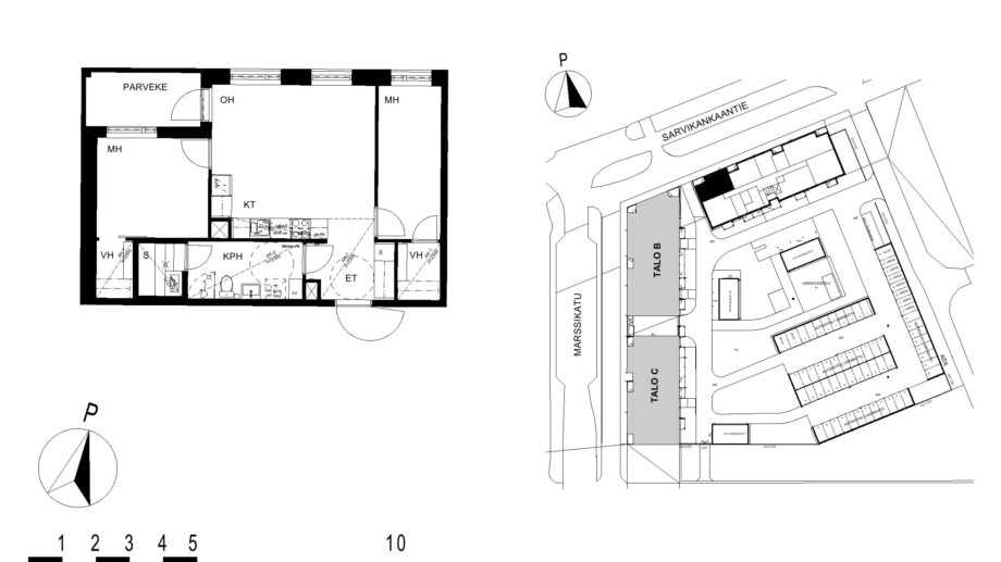
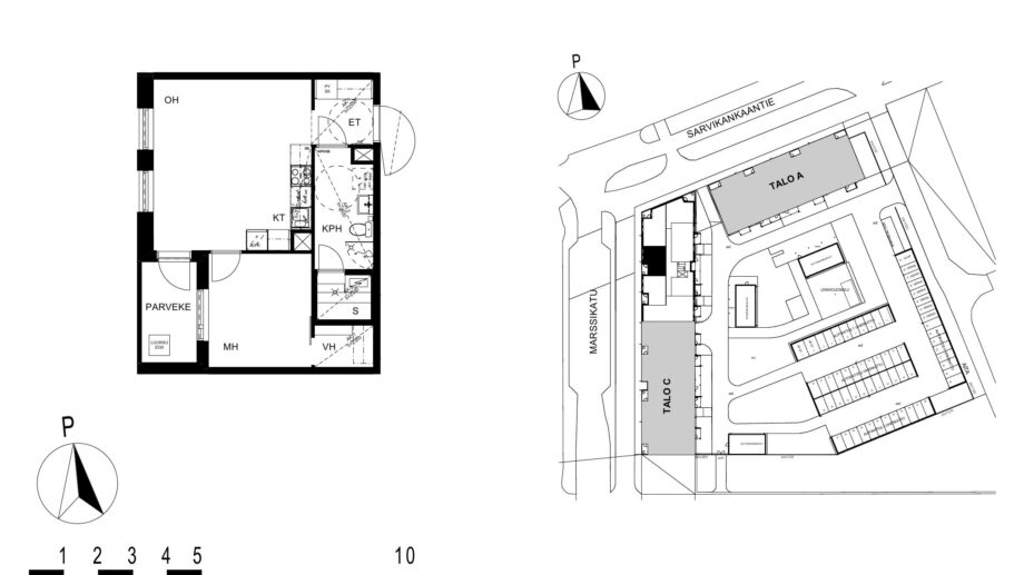
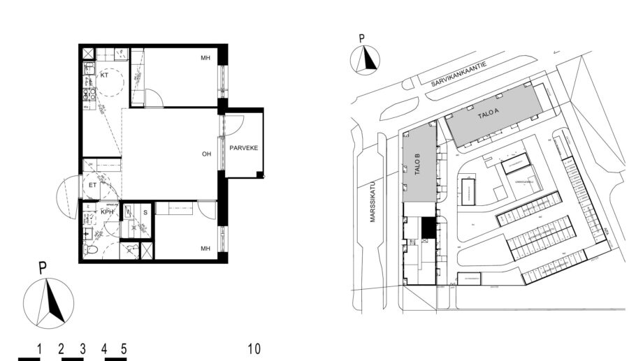
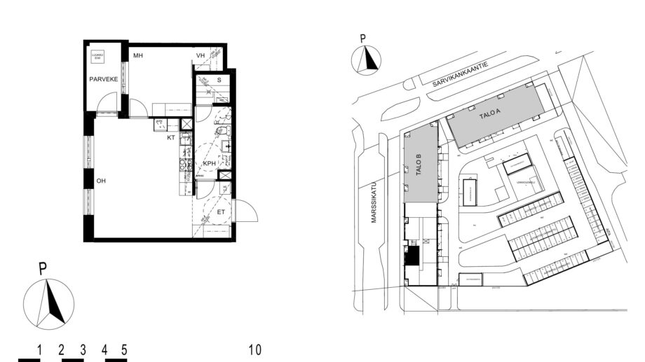
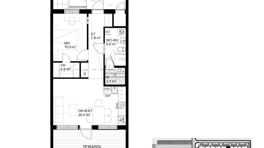
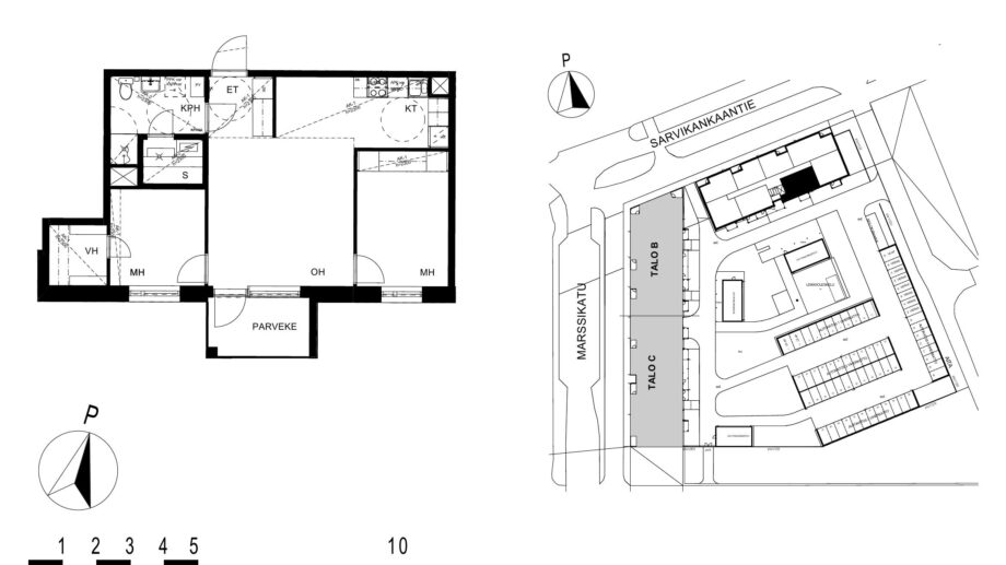
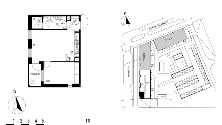
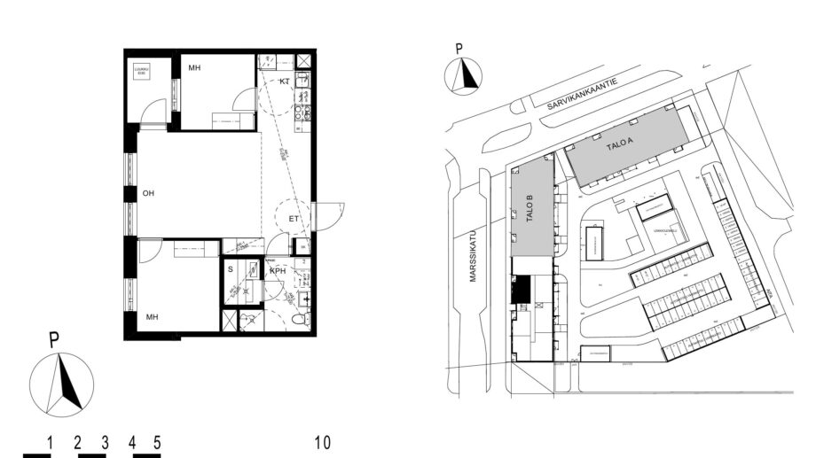
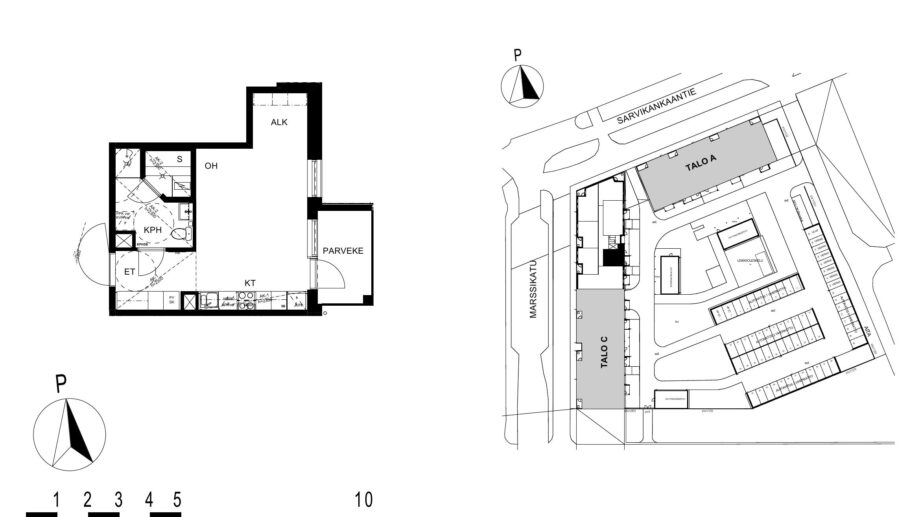
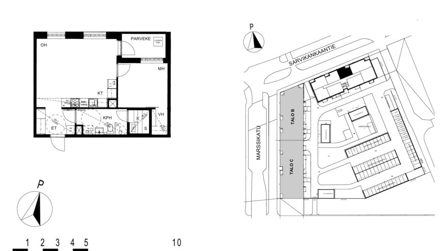
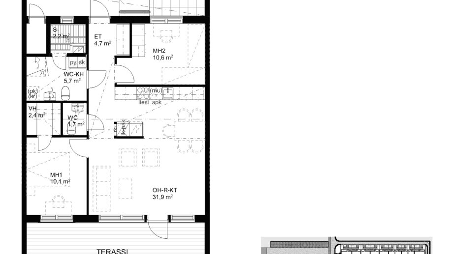
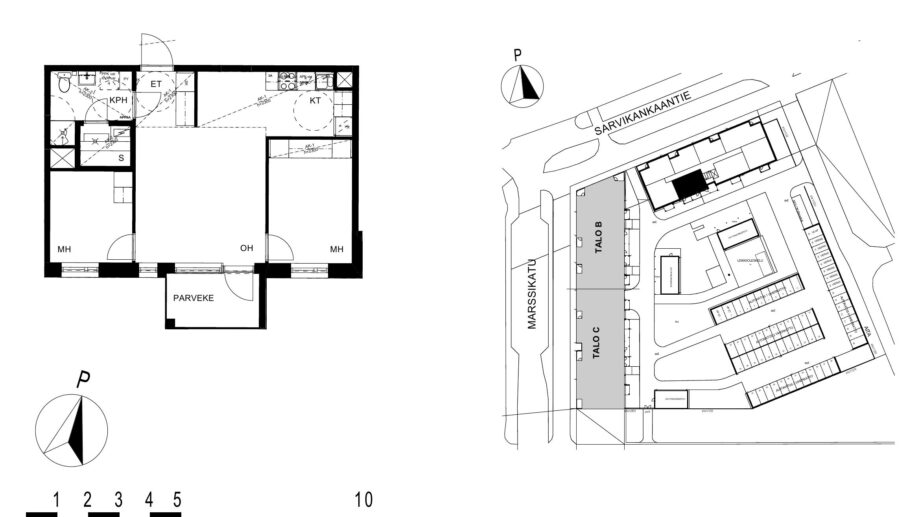
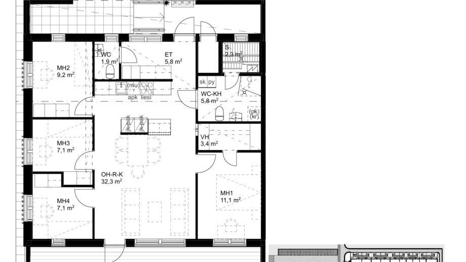
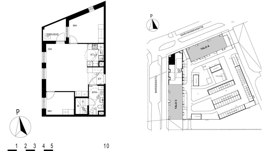
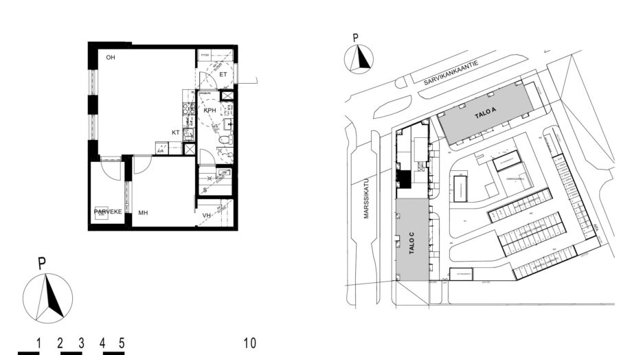
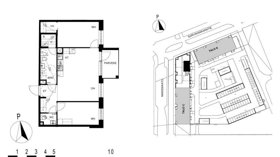
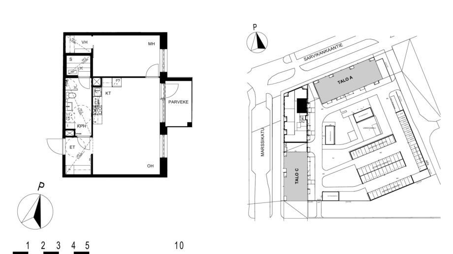
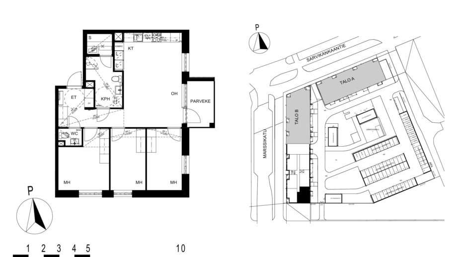
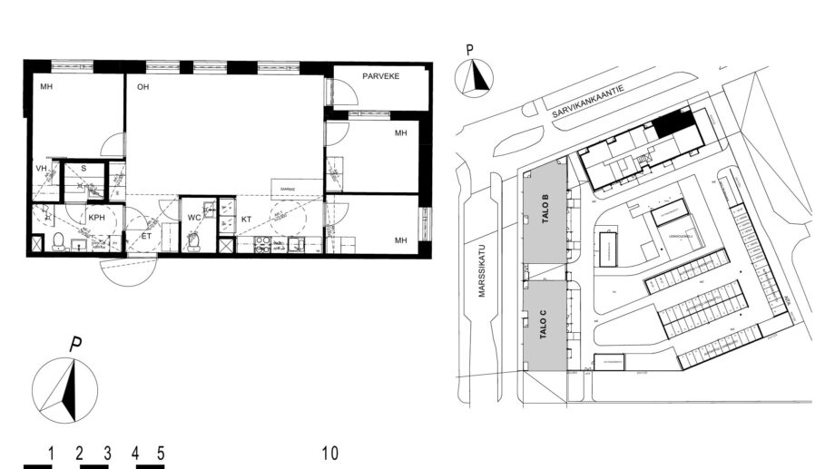
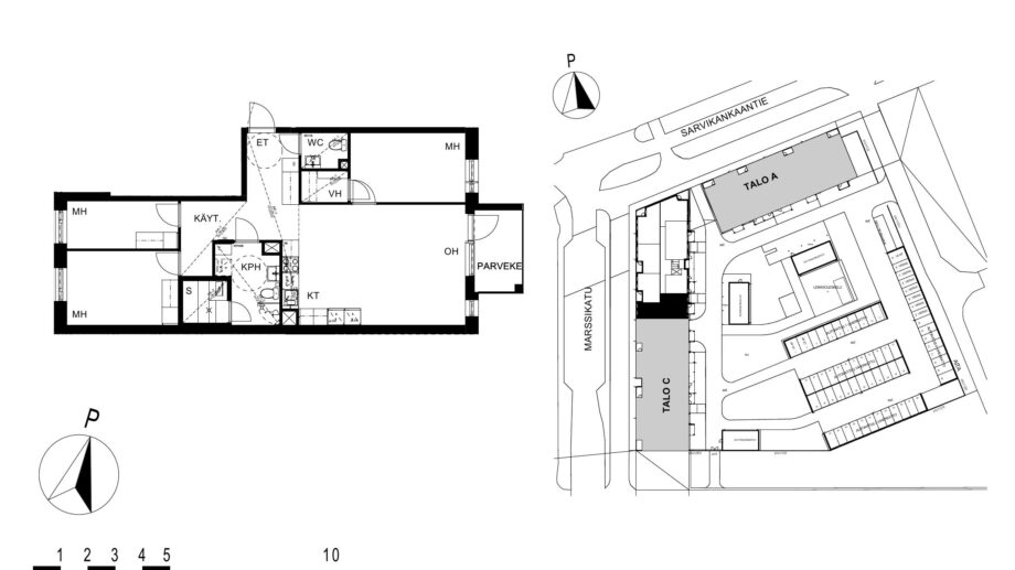
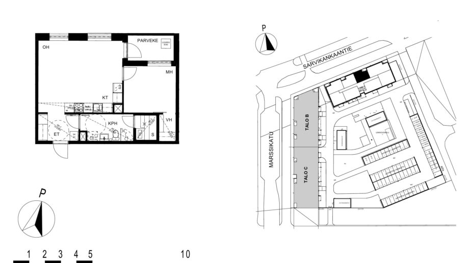
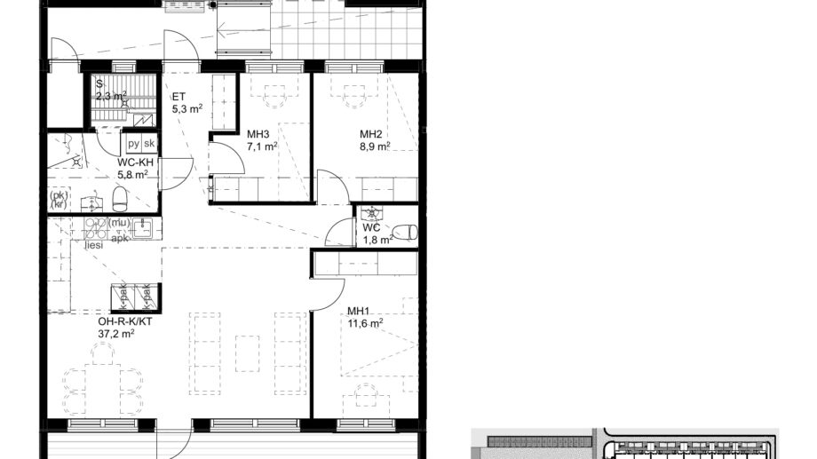
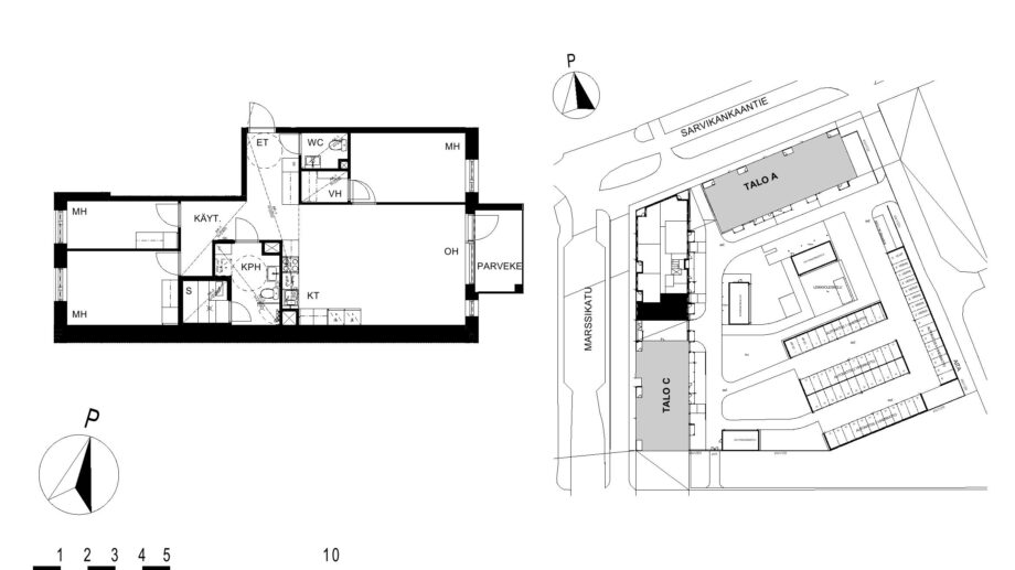
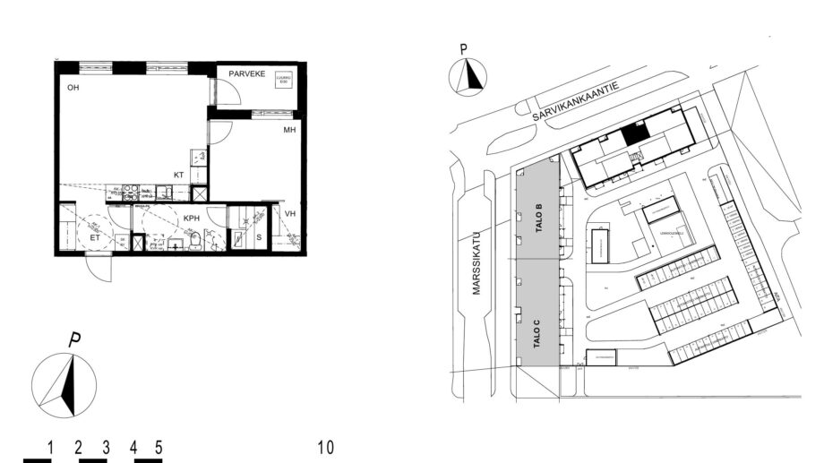
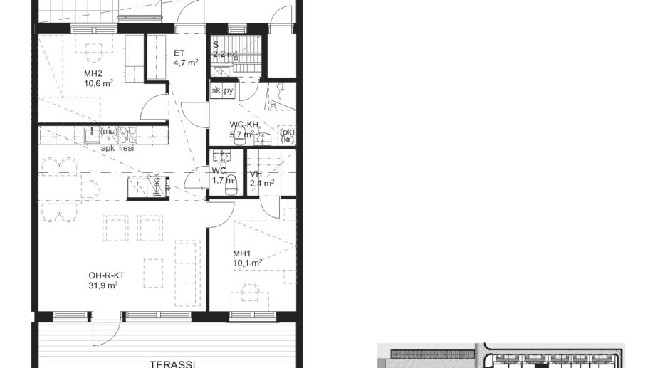
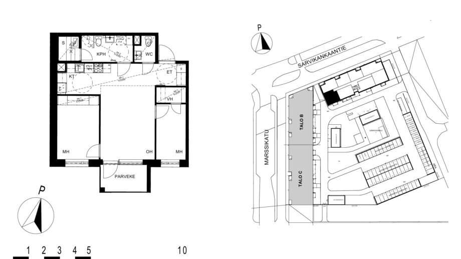
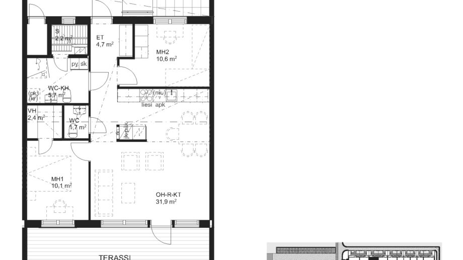
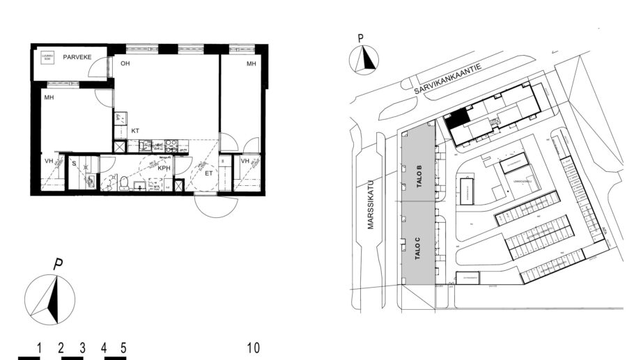
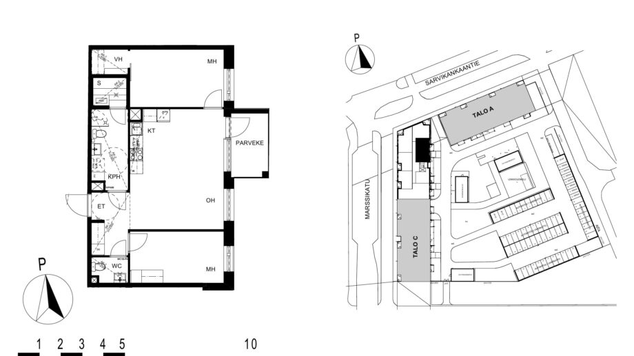
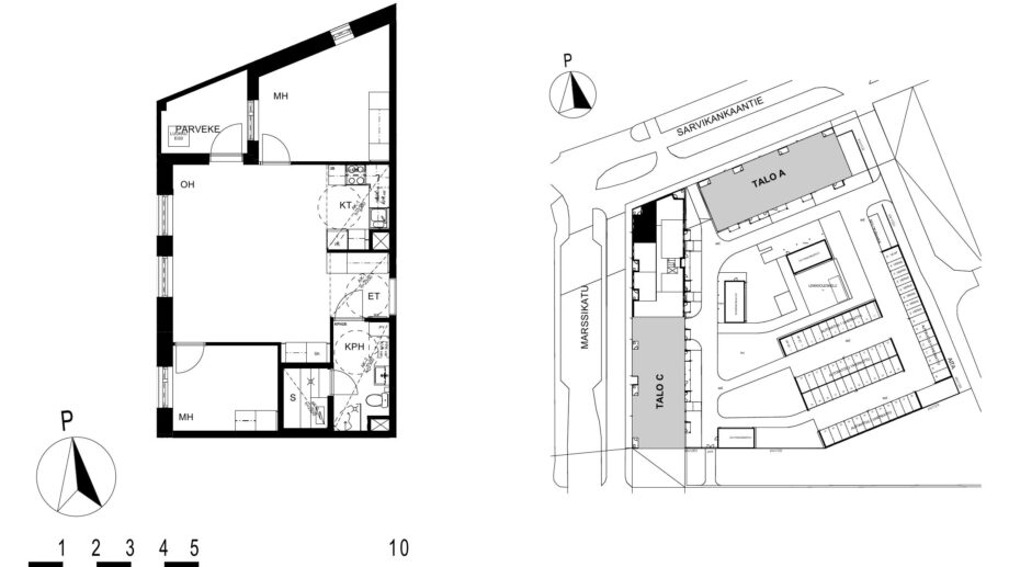
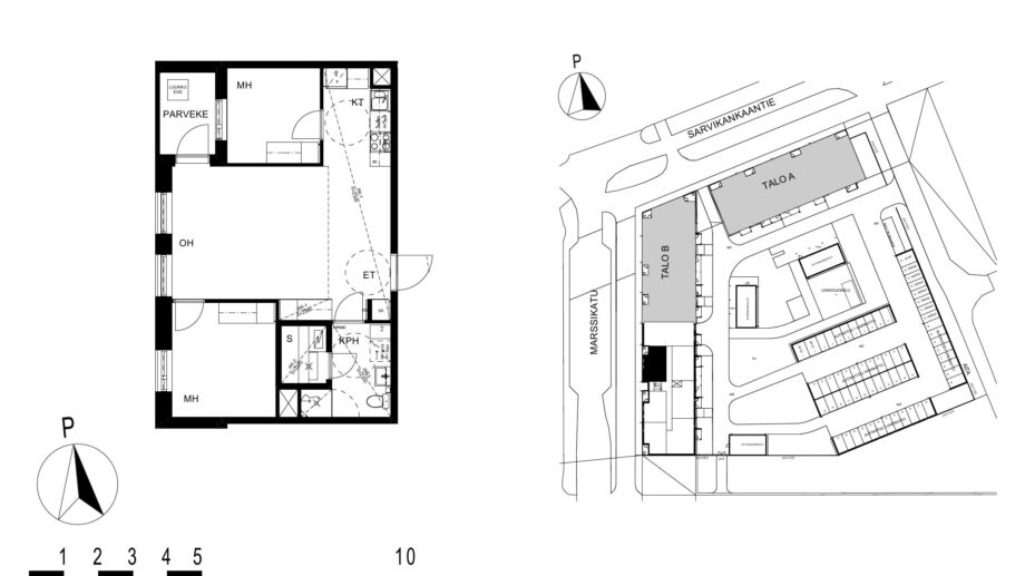
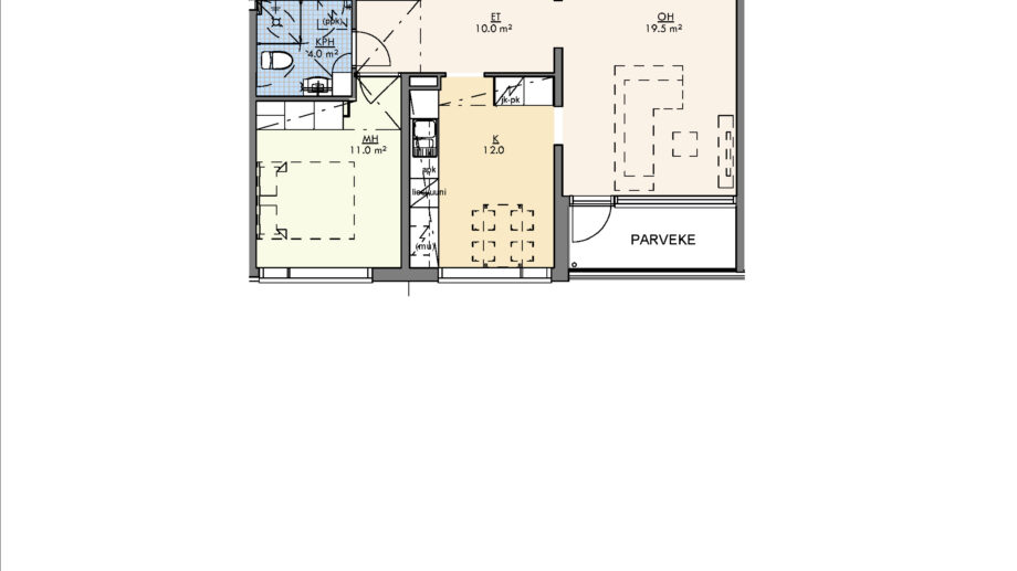
Kuviomarssi 2 / Hiukkavaara
Hiukkavaaraan osoitteeseen Kuviomarssi 2 rakennetaan kerrostalokohde, johon valmistuu 77 asuntoa. Asunnoista 28 kpl on vapaarahoitteisia, joissa ei sovelleta tulo- ja varallisuusrajoja. Kohteen arvioitu valmistuminen lokakuussa 2026.

Asuntojakauma:
| 2h+kt+s | 49,0 m² | 797 – 821 €/kk | 7 kpl |
| 3h+kt+s | 58,5 – 62,0 m² | 933 – 1009 €/kk | 13 kpl |
| 3h+kt+s | 68,5 m² | 1060 – 1093 €/kk | 4 kpl |
| 4h+kt+s | 81,5 m² | 1223 – 1260 €/kk | 4 kpl |
Vuokriin sisältyy lämmitys ja 25 Mbit/s laajakaista. Vesi laskutetaan erikseen kulutuksen mukaan.
Asunnot ovat vapaarahoitteisia, joihin ei sovelleta tulo- ja varallisuusrajoituksia.
Kohteen alustava hakuaika 13.-26.8.2026.
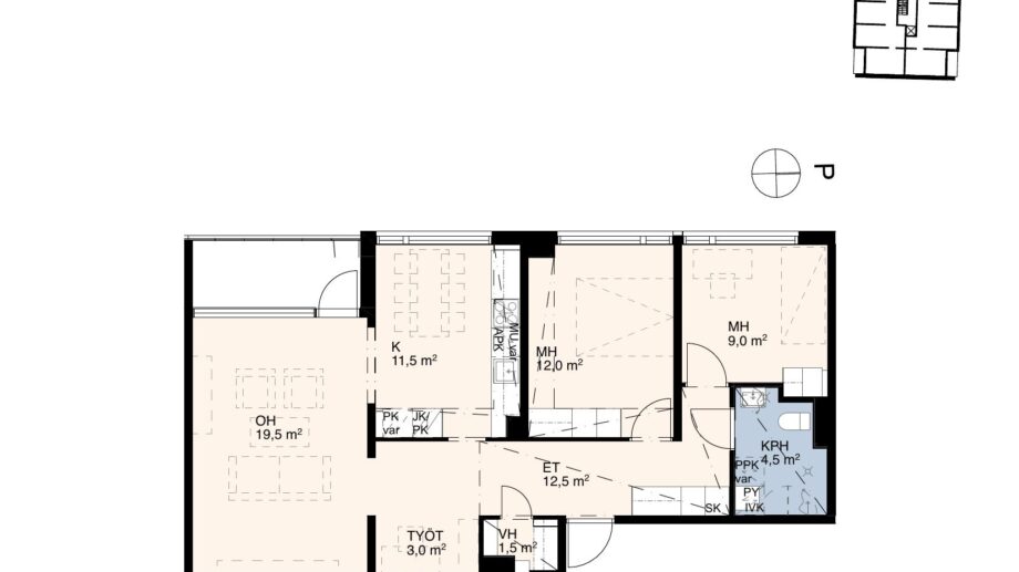
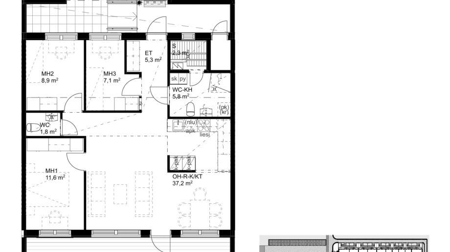
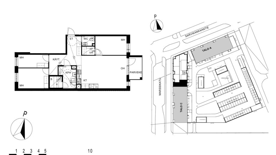
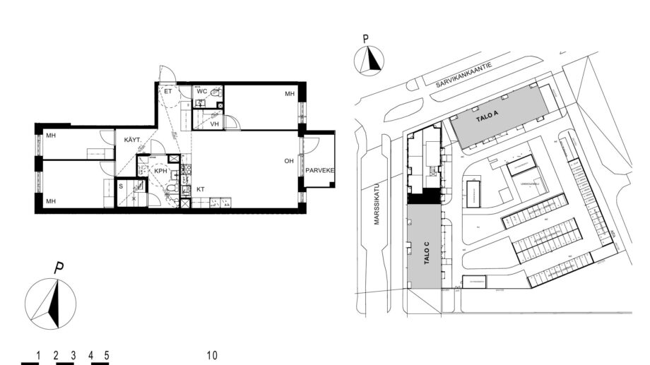
Asuntojakauma:
| 1h+kt+s | 35,0 m² | 562 – 573 €/kk | 3 kpl |
| 2h+kt+s | 44,0 – 47,0 m² | 674 – 727 €/kk | 9 kpl |
| 2h+kt+s | 49,0 – 56 m² | 736 – 817 €/kk | 11 kpl |
| 3h+kt+s | 58,5 – 62,5 m² | 862 – 930 €/kk | 13 kpl |
| 3h+kt+s | 67,0 m² | 968 – 987 €/kk | 3 kpl |
| 4h+kt+s | 74,5 m² | 1054 – 1075 €/kk | 3 kpl |
| 4h+kt+s | 85,0 m² | 1166 – 1202 €/kk | 4 kpl |
| 5h+kt+s | 95,5 m² | 1310 – 1336 €/kk | 3 kpl |
Vuokriin sisältyy lämmitys ja 25 Mbit/s laajakaista. Vesi laskutetaan erikseen kulutuksen mukaan.
Asuntoihin sovelletaan tulo- ja varallisuusrajoituksia, joista voit lukea tarkemmin Oulun kaupungin verkkosivuilta.
Kohteen alustava hakuaika 13.-26.8.2026.
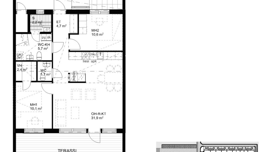
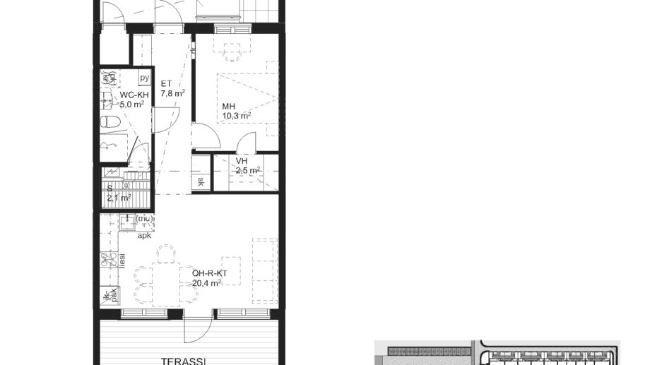
Huom! Alla olevat 3D-mallinnokset ovat taiteilijan näkemys asunnoista.
3D-mallinnokset Kuviomarssi 2 / Hiukkavaara
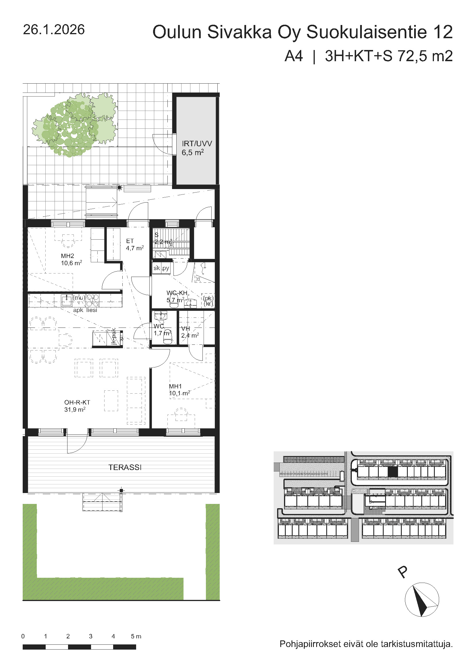
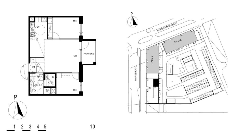
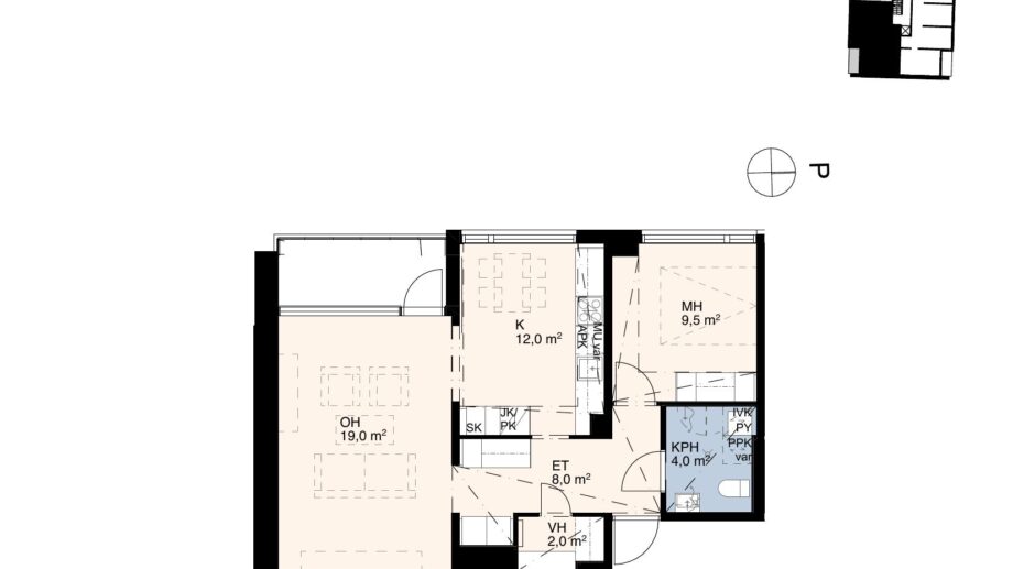
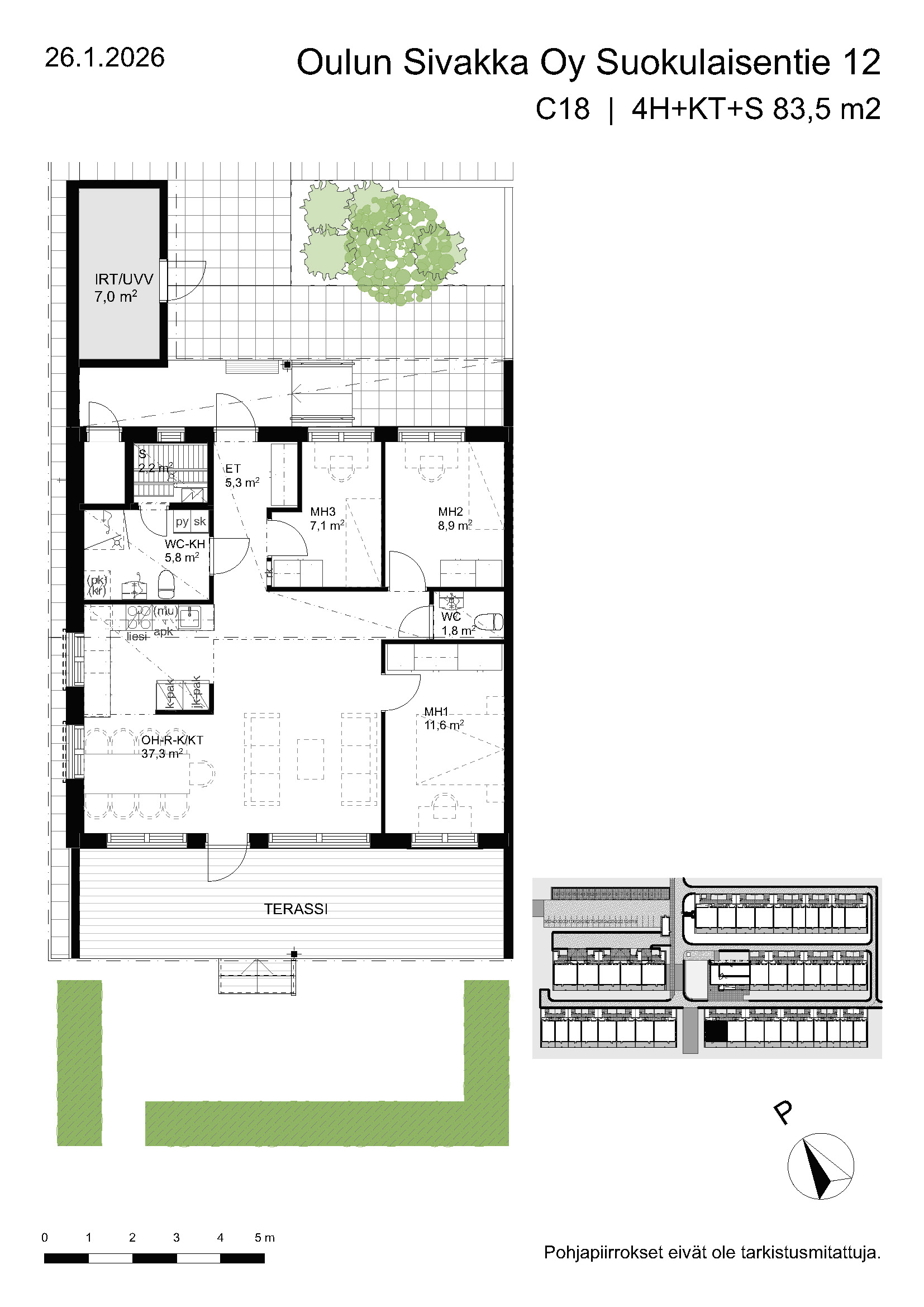
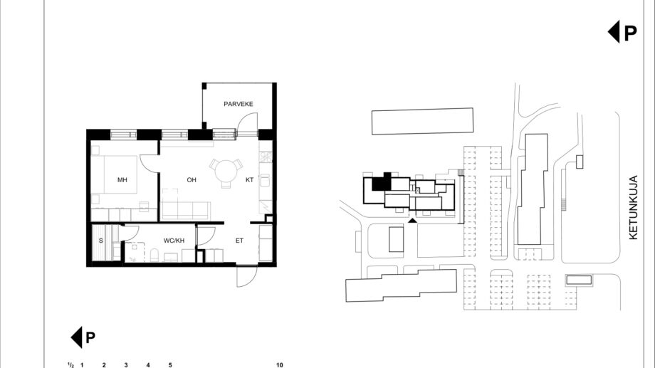
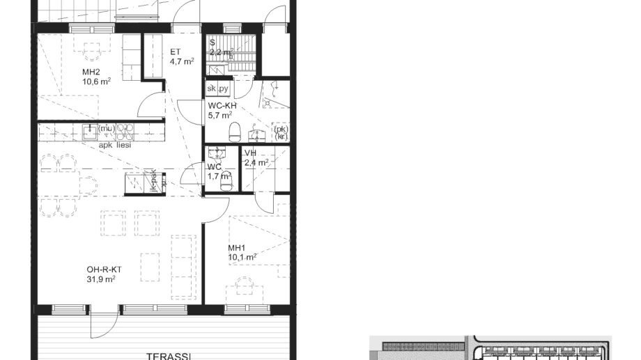
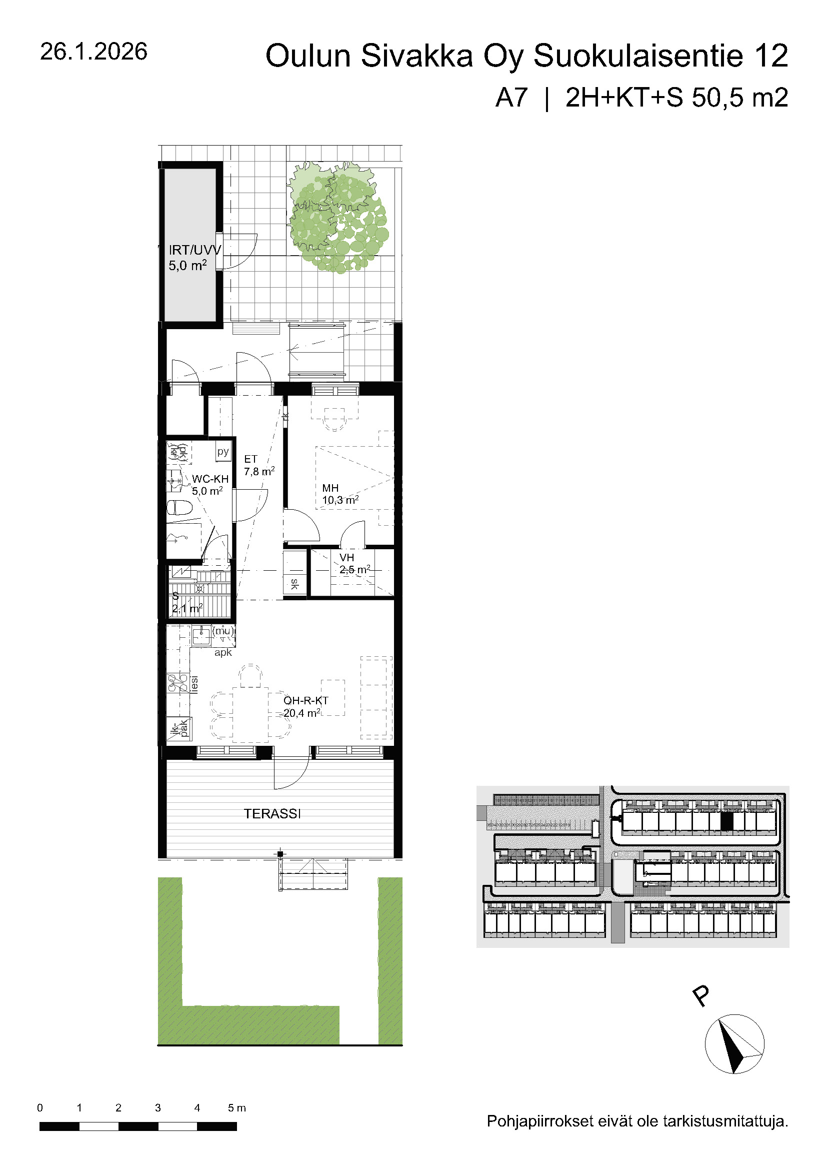
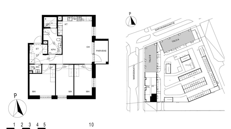
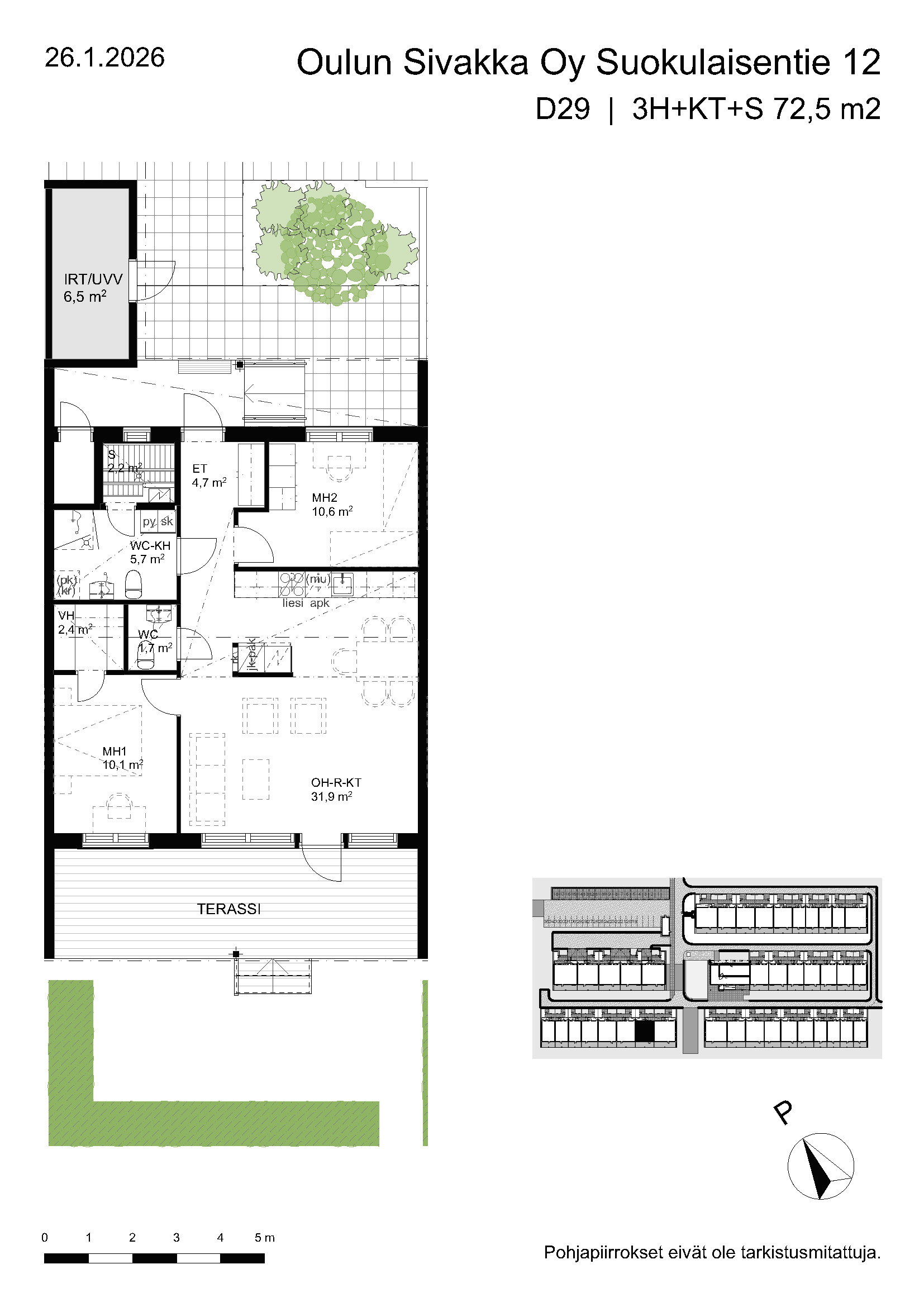
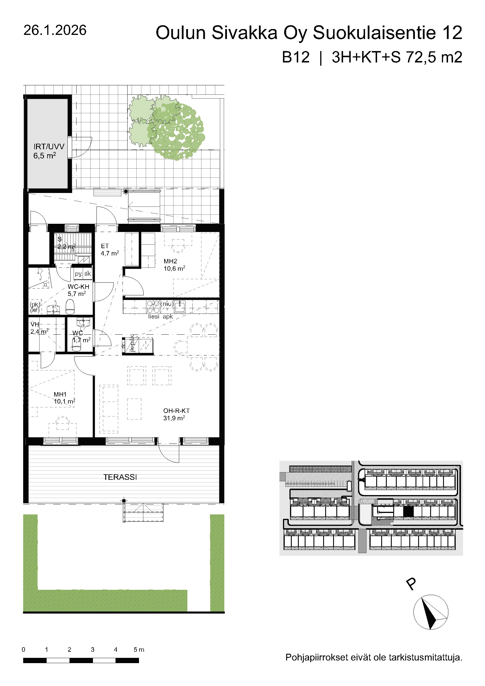
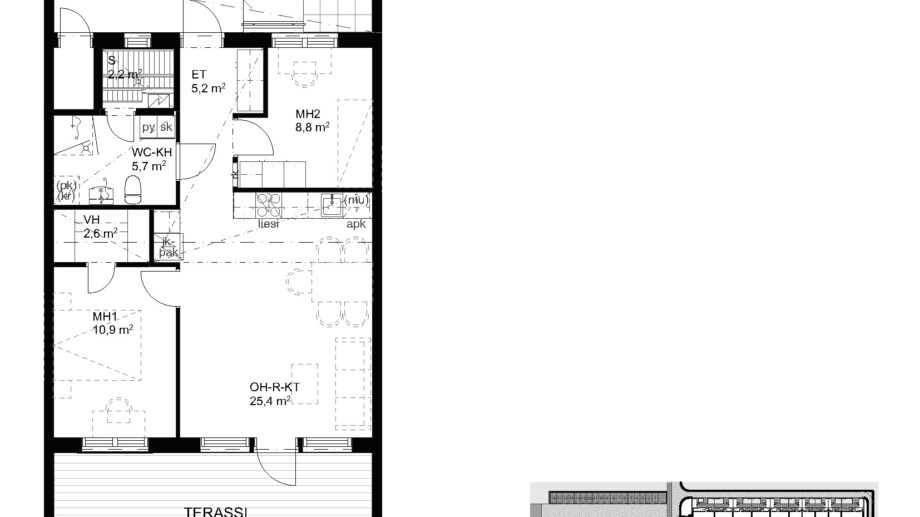
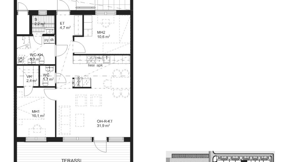
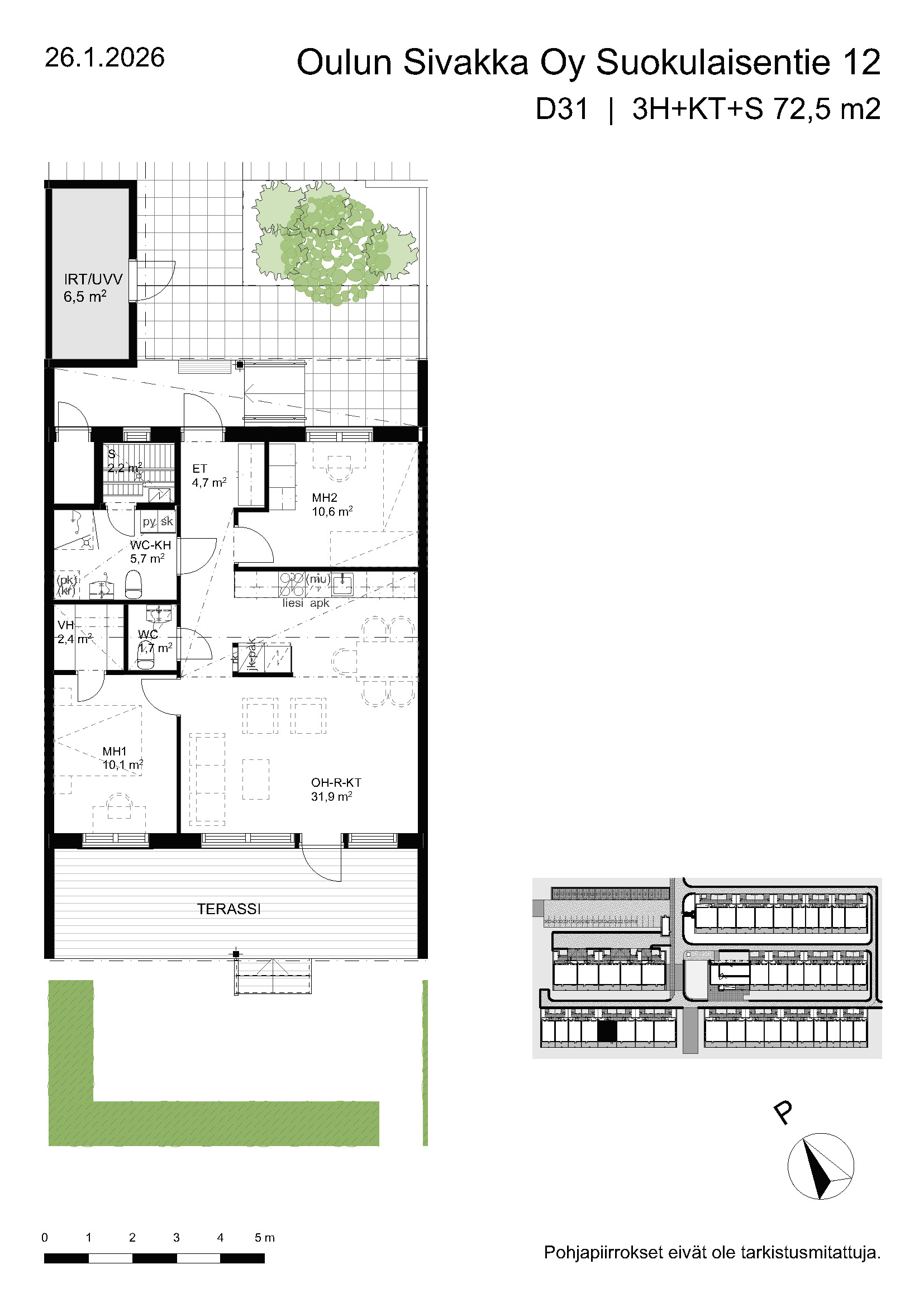
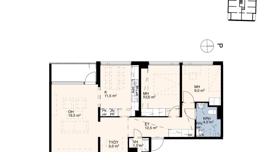
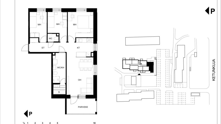
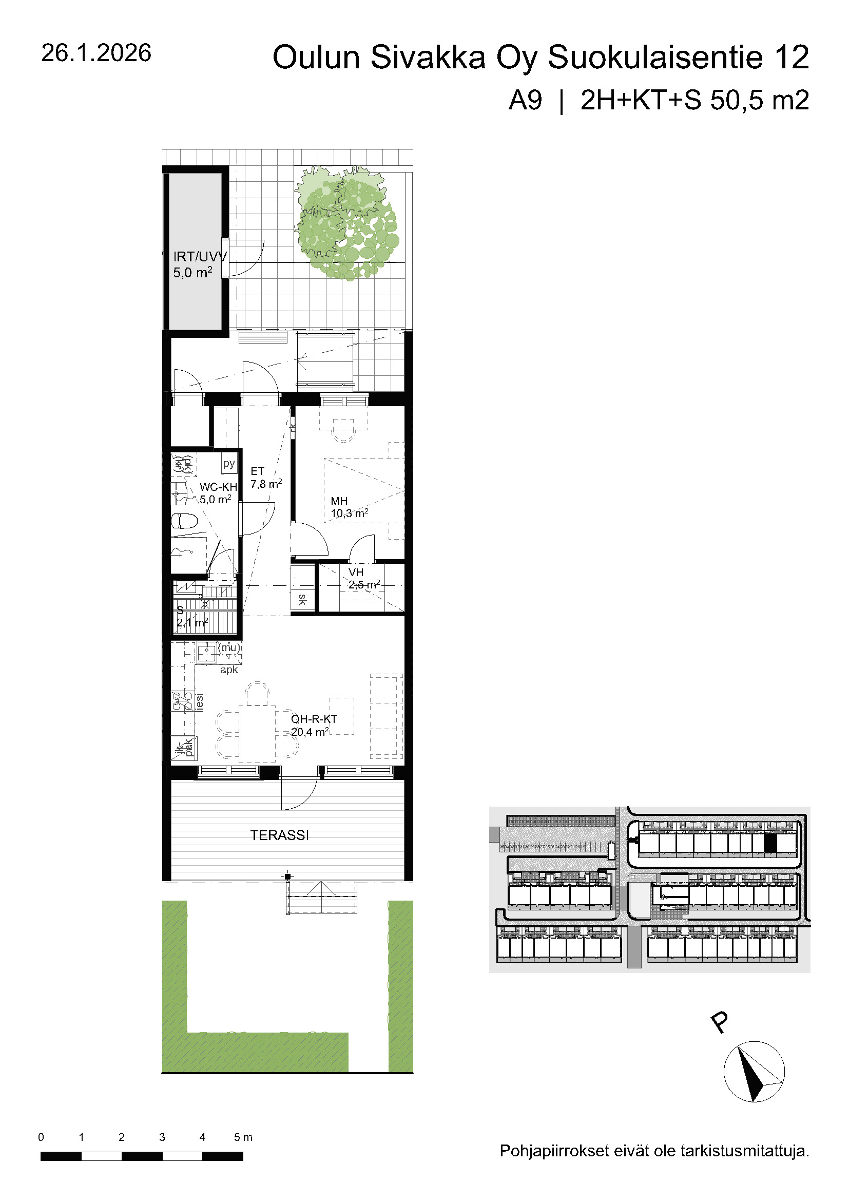
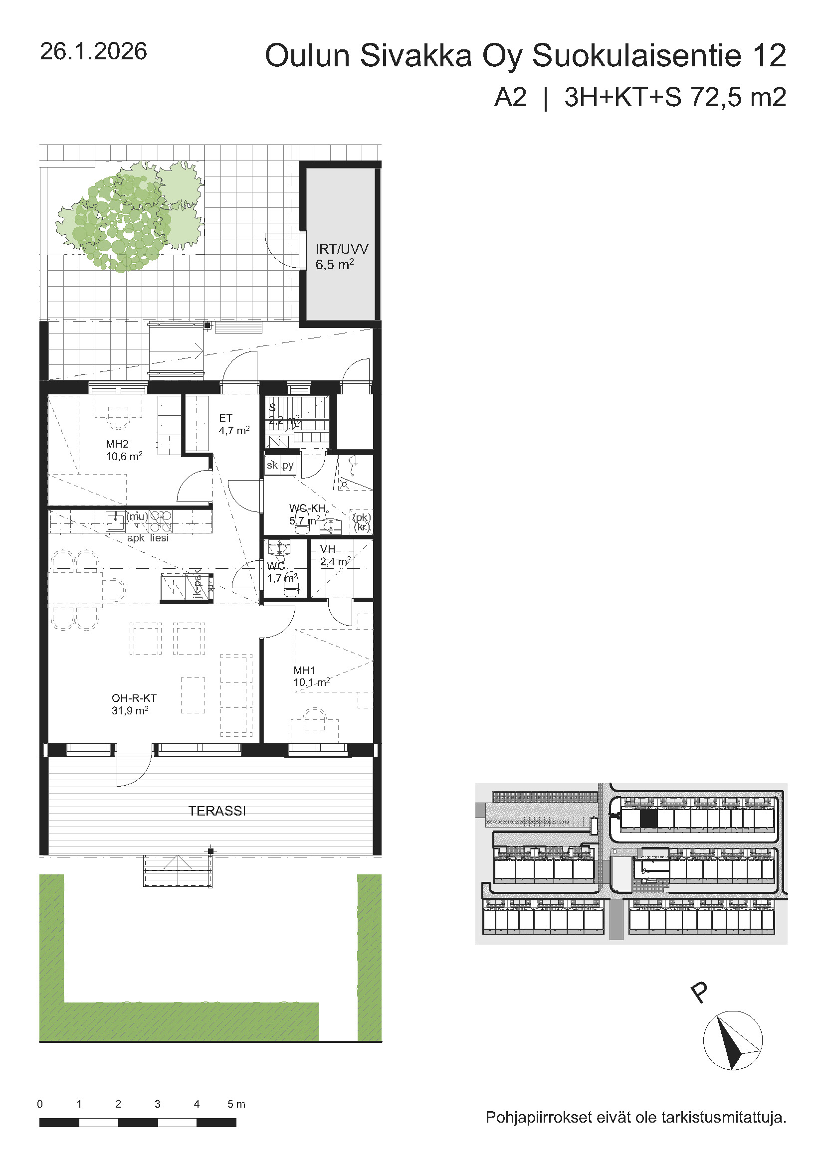
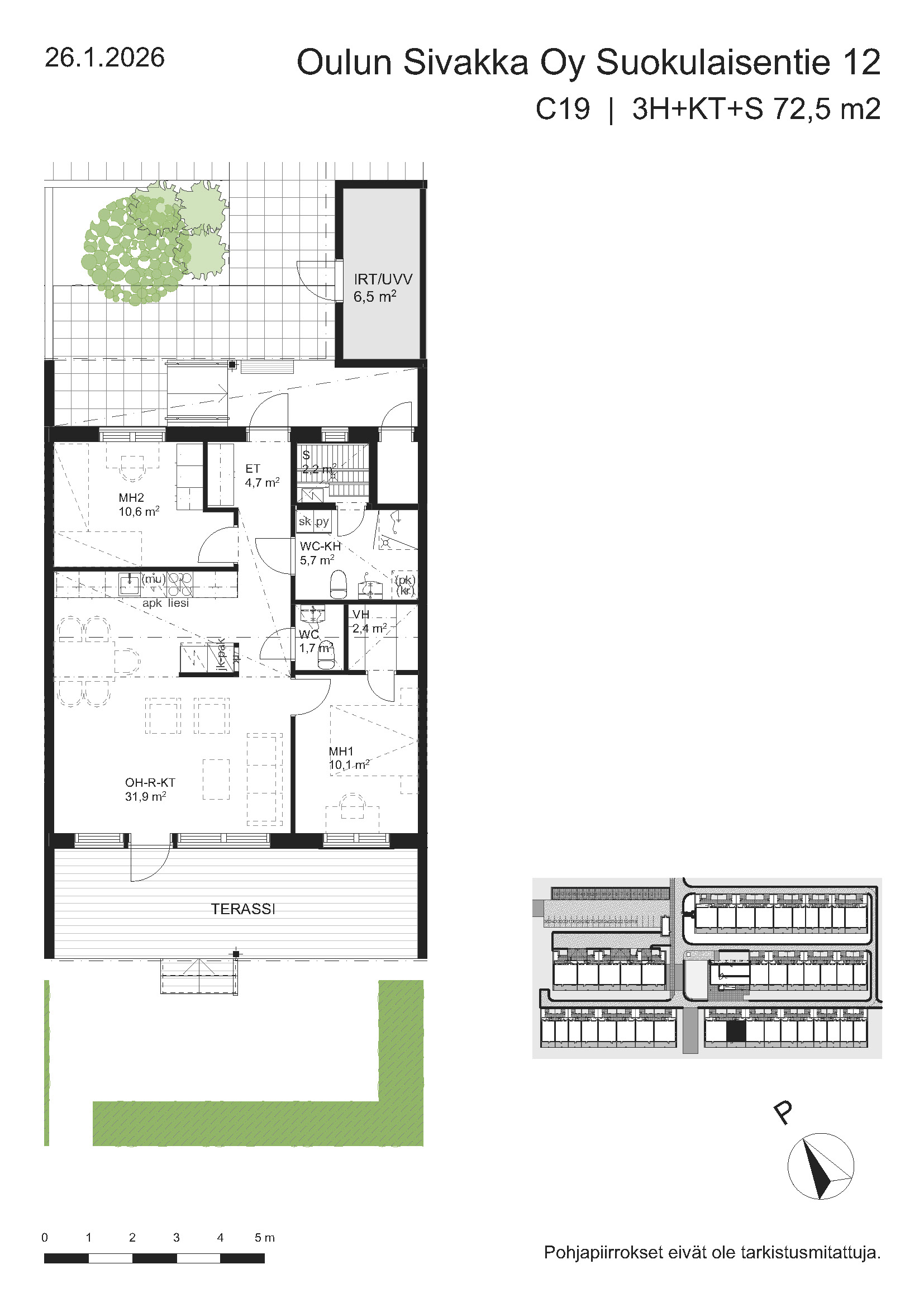
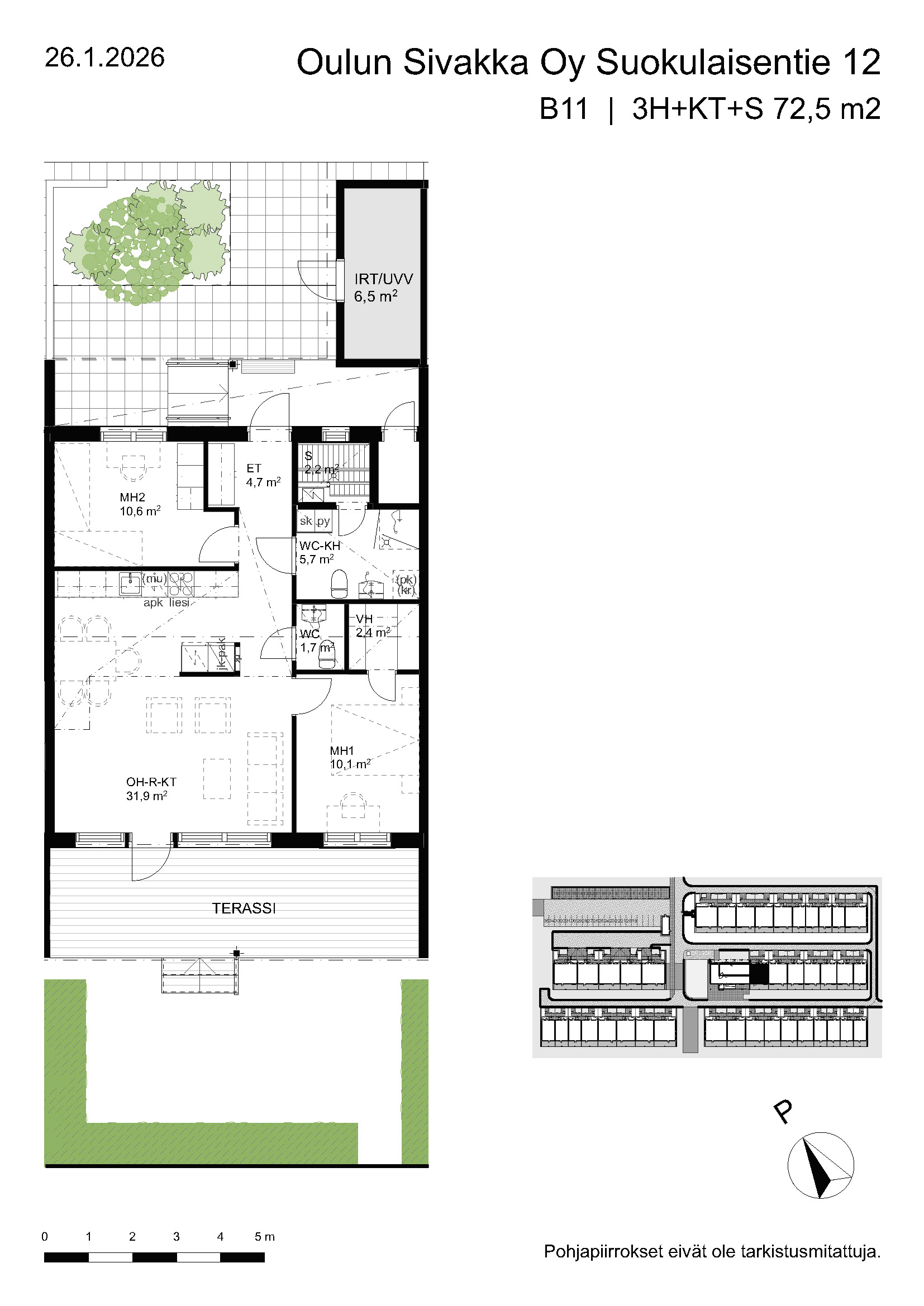
Suokulaisentie 12 / Kuivasjärvi
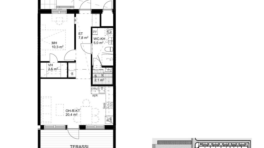
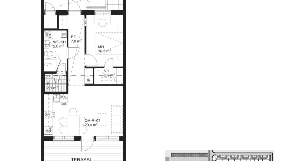
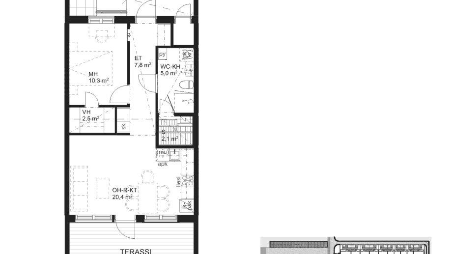
Kuivasjärvelle osoitteeseen Suokulaisentie 12 rakennetaan uusia rivitaloasuntoja 40 kpl. Kohteen arvioitu valmistuminen lokakuussa 2026.

Asuntojakauma:
| 2h+kt+s | 50,5 m² | 718 €/kk | 12 kpl |
| 3h+kt+s | 63,5 – 74,5 m² | 877 – 988 €/kk | 20 kpl |
| 4h+kt+s | 83,0 – 83,5 m² | 1100 – 1107 €/kk | 6 kpl |
| 5h+kt+s | 90,0 m² | 1168 €/kk | 2 kpl |
Vuokriin sisältyy lämmitys ja 25 Mbit/s laajakaista. Vesi laskutetaan erikseen kulutuksen mukaan.
Asuntoihin sovelletaan tulo- ja varallisuusrajoituksia, joista voit lukea tarkemmin Oulun kaupungin verkkosivuilta.
Kohteen alustava hakuaika 3.-12.8.2026.
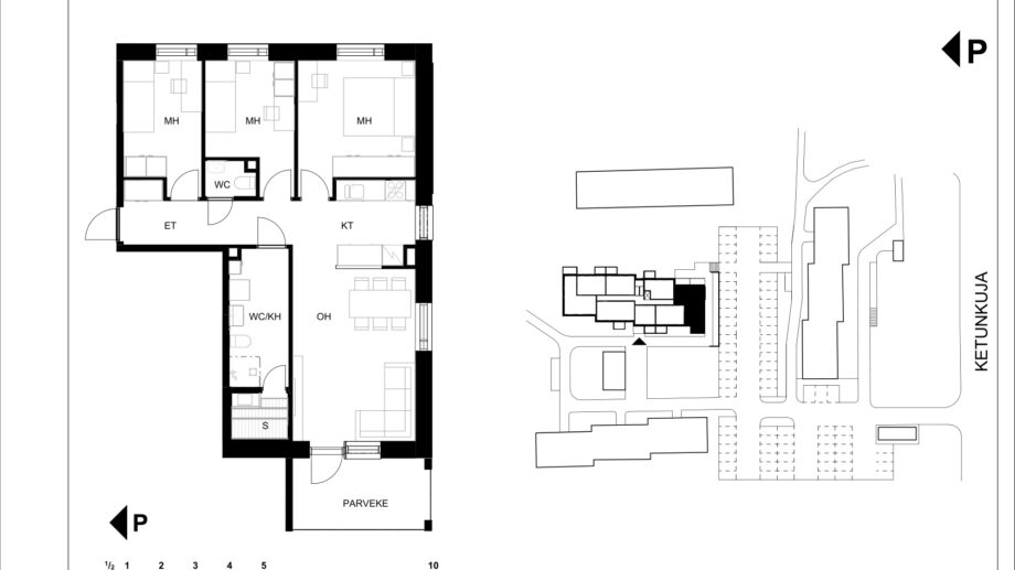
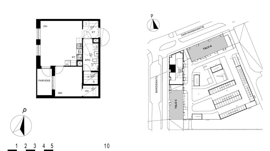
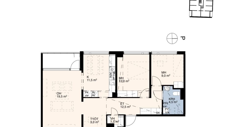
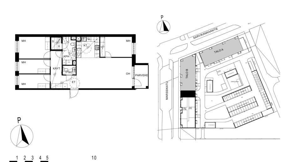
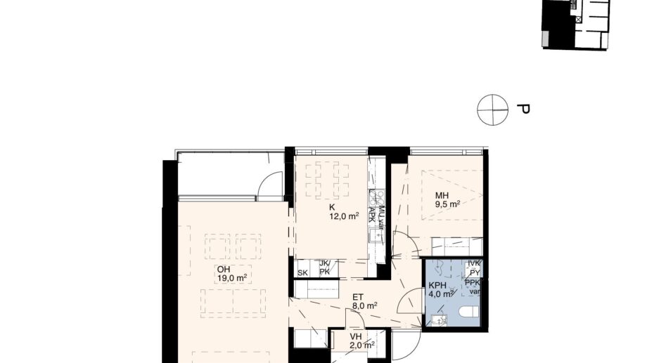
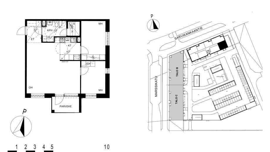
Maahisentie 2 / Puolivälinkangas
Puolivälikankaan alueen uudistaminen jatkuu. Sivakka peruskorjaa kahdeksankerroksisen kerrostalon osoitteessa Maahisentie 2. Ensimmäisessä vaiheessa valmistuu 64 asuntoa. Kohteen arvioitu valmistuminen marraskuussa 2026.

Asuntojakauma
| 1h+kt | 29,0 m² | 381 – 409 €/kk | 8 kpl |
| 2h+kt | 45,5 m² | 526 – 564 €/kk | 8 kpl |
| 2h+k | 55,5 – 56 m² | 623 – 674 €/kk | 32 kpl |
| 3h+k | 75,0 m² | 825 – 885 €/kk | 16 kpl |
Vuokraan sisältyy lämmitys ja 25 Mbit/s laajakaista. Vesimaksu laskutetaan erikseen kulutuksen mukaan.
Asuntoihin sovelletaan tulo- ja varallisuusrajoituksia, joista voit lukea tarkemmin Oulun kaupungin verkkosivuilta.
Kohteen alustava hakuaika 7.-20.9.2026.